ZN63(VS1)-12 Indoor Vacuum Circuit Breaker
Overview
Operating Conditions
1.The ambient temperature is not higher than +40°C and not lower than -15°C (storage and transportation at -30°C are allowed);
2. The altitude is not higher than 1000m;
3.Relative temperature: the daily average is not more than 95%, and the monthly average The value is not more than 90%, the daily average value of saturated vapor pressure is not more than 2.2×10-‘MPa, and the monthly average value is not more than 1.8×10MPa;
4.The seismic intensity does not exceed 8 degrees;
5.There is no fire, explosion hazard, serious pollution, Places subject to chemical corrosion and severe vibration.
Technical Data
| Item | Unit | Parameter | ||||
| Rated voltage | KV | 12 | ||||
| Rated frequency | Hz | 50 | ||||
| Rated insulation level | 1min power frequency withstand voltage | KA | 42 | |||
| Rated lightning impulse withstand voltage (peak) | KA | 75 | ||||
| Rated short circuit breaking current | KA | 20 | 25 | 31.5 | 40 | |
| Rated current | A | 630 | 630 | 1250,1600 |
1250,1600 |
|
| 1250 | 1250 |
2000,2500 |
2000,2500 |
|||
| Rated thermal stable current (effective value) | KA | 20 | 25 | 31.5 | 40 | |
| Rated dynamicstable current (peak value) | 50 | 63 | 80 | 100 | ||
| Rated short-circuit making current (peak value) | 50 | 63 | 80 | 100 | ||
| Rated thermal stability time | s | 4 | ||||
| Mechanical life | Times | 20000 | ||||
| Secondary circuit power frequency withstand current(1 min) | V | 2000 | ||||
| Rated operating sequence | / | Opening -0.3s – closing and opening – 180s – closing and opening -180s – closing and opening -180s – closing and opening (40kA) |
||||
Overall and mounting dimensions(mm)
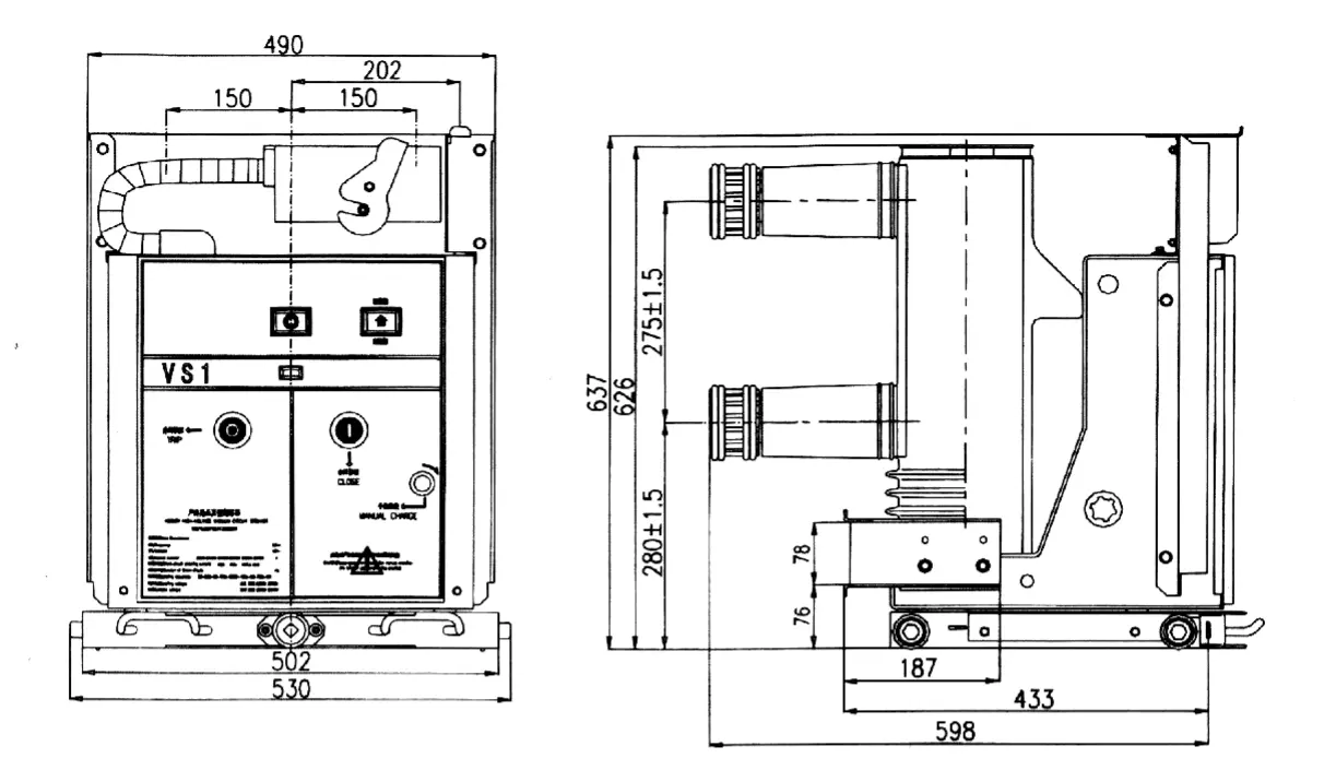
Figure 1: Handcart type ZN63 (VS1) circuit breaker suitable for 650mm cabinet width overall dimensions

| Rated current (A) | 630 | 1250 |
| Rated short-circuit breaking current(KA) | 20,25,31.5 | 20,25,31.5 |
| Matching static contact dimensions(mm) | Φ35 | Φ49 |
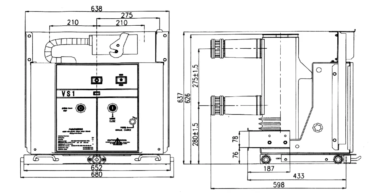
Figure 2: Handcart type ZN63 (VS1) circuit breaker suitable for 800mm cabinet width overall dimensions

| Rated current (A) | 630 | 1250 | 1600 |
| Rated short-circuit breaking current(KA) | 20,25,31.5 | 20,25,31.5 | 31.5,40 |
| Matching static contact dimensions(mm) | Φ35 | Φ49 | Φ55 |
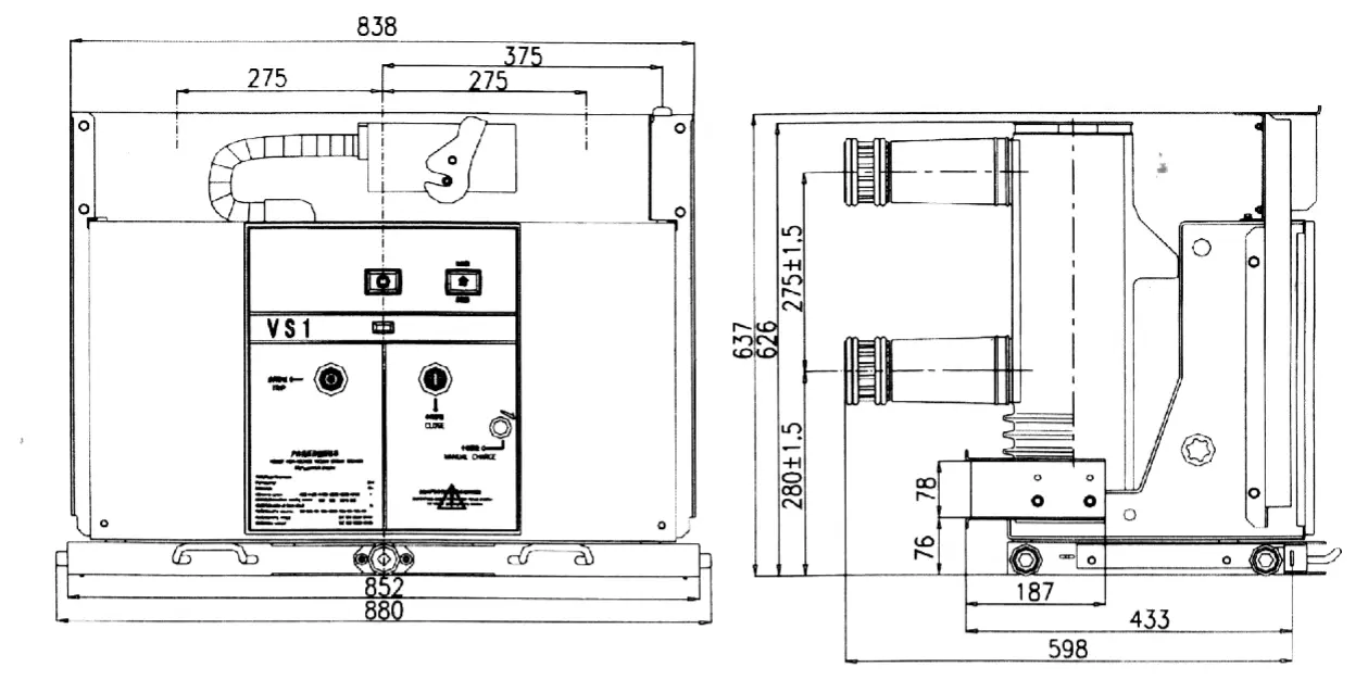
Figure 3: Fixed type ZN63 (VS1) circuit breaker suitable for 800mm cabinet width overall dimensions

| Rated current (A) | 630 | 1250 | 1600 |
| Rated short-circuit breaking current(KA) | 20,25,31.5 | 20,25,31.5 | 31.5,40 |
Figure 4: Handcart type ZN63 (VS1) circuit breaker suitable for 1000mm cabinet width overall dimensions

| Rated current (A) | 630 | 1250 | 1600 |
| Rated short-circuit breaking current(KA) | 20,25,31.5 | 20,25,31.5 | 31.5,40 |
| Matching static contact dimensions(mm) | Φ35 | Φ49 | Φ55 |
Figure 5: Fixed type ZN63 (VS1) circuit breaker suitable for 1000mm cabinet width overall dimensions

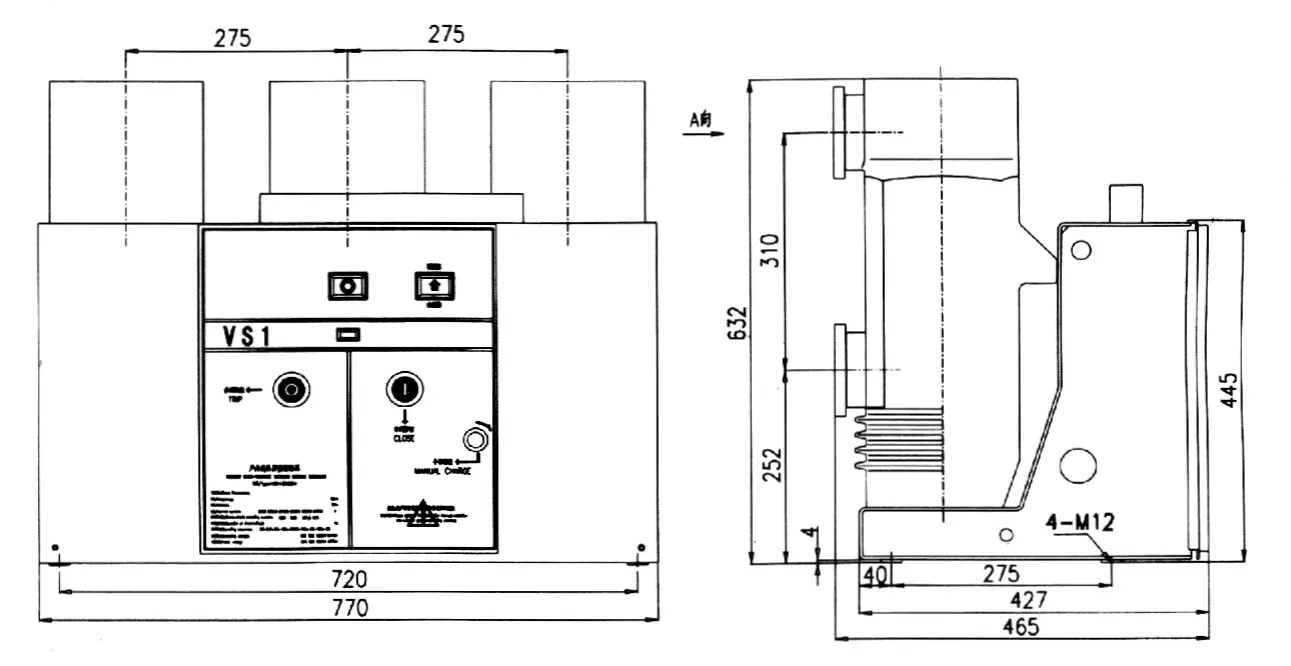
| Rated current (A) | 1600 | 2000 | 2500 | 3150 | 4000 |
| Rated short-circuit breaking current(KA) | 31.5,40,50 | 40,50 | |||
Note:4000A requires forced air cooling.
